top of page
Ask about the property:
EDRIEL M. DOLOROSO
Mobile: +63 916 606 0746
+63 905 560 3688
KIRANA
(Single Detached)
Governor’s Drive, General Trias, Cavite
The Gentri Heights offers high quality modern-asian homes in the progressive city of General Trias in Cavite. Strategically located along Governor's Drive, neighbored by first rate schools, top industrial zones and business hubs, churches, and retail hubs, residents can enjoy life with ease and utmost accessibility. Own a home that blends Eastern serenity with Western comfort and discover the beauty of nature right at your doorstep.
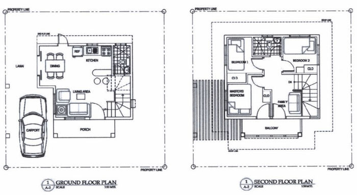
Lot Area: Minimum of 98 sqm
Floor Area: 82 sqm
Features
-
3 Bedrooms
-
2 Toilet and Bath
-
Veranda
-
Carport
bottom of page







